Вхід на сайт

Ел. пошта:
Пароль:

Реєстрація на сайті

Призвіще: Область:
Ім'я: Населений пункт:
    По батькові: Номер телефону:
    Ел. пошта: Компанія:
      Пароль: Посада:
      Повторіть пароль: Рік початку роботи:
      Фото:
      З правилами розміщення об'єктів погоджуюсь

      Забули пароль?

      Вкажіть ел. пошту — ми надішлемо Вам новий пароль для входу
      Ел. пошта:

      Проблема на сайті

      Закрити
      Ваш e-mail:
      (необов'язково)
      Розкажіть нам, що сталось

      _________.jpg

      пер. Соколова — Продається квартира

      (г. Полтава, Ленинский район)

      65000 $

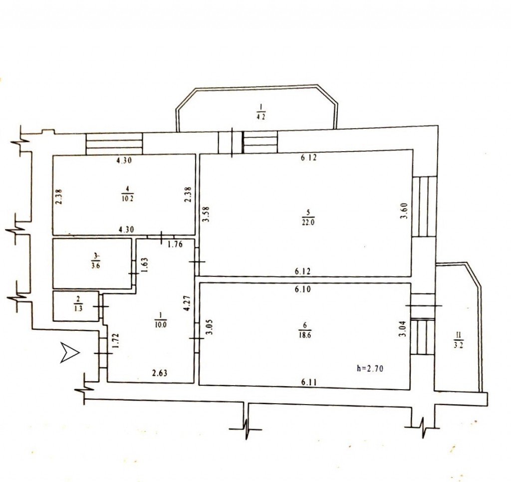
      Загальна площа: 73.1 кв.м

      Жила площа: 40.6 кв.м

      Площа кухні: 10.2 кв.м

      Кімнат: 2

      Поверх: 2

      К-ть поверхів: 9

      Продаж 2 кімнатної квартири на Подолі, район вул. Богдана Хмельницького, 7-9 в новому будинку, з 10-ти річним ремонтом, автономне опалення

      Характеристика квартири:
      - загальна площа 73,1 кв.м;
      - житлова площа 40,6 кв.м;
      - кімната- 22,0 кв.м;
      - кімната- 18,6 кв.м;
      - кухня 10,2 кв.м;
      - санвузол окремий;
      - поверх 2/9 пов. цегляного будинку;
      - 2 балкони засклені
      - висота стель Н= 2,7 м;
      Комунікації:
      - централізовані;
      - опалення та підігрів води- двоконтурний котел,
      - лічильники: світло, газ, холодне водопостачання
      Стан:
      - вікна м/п
      - 10-ти річний ремонт
      Вартість квартири:
      - $65000 (на руки) + витрати по нотаріальному оформленню угоди + послуги агенції нерухомості

      Надіслати скаргу

      Закрити
      Поскаржитися на об'єкт «пер. Соколова (г. Полтава, Ленинский район)»
      Ваш коментар:(Необов'язково)
      Ваша скарга буде надіслана ріелтору, що розмістив об'єкт, а також адміністрації сайту АФНУ.
      Ваше ім'я:
      (Обов'язково)
      Ваш e-mail для відповіді:
      (Обов'язково)

      Вам также могут подойти

      ул. Октябрьская (г. Полтава, Октябрьский район) - Продається квартира, 70000 $ - АФНУ

      Оновлено: 31 серпня

      Розміщено: 8 липня 2020

      Продається квартира

      3 кімн., площа 84.5/56.7/10.5, поверх 3/3

      г. Полтава, ул. Октябрьская

      70000 $

      Остапченко Александр Степанович

      соучредитель (Агентство недвижимости "Альянс риэлти" Полтава)

      У Вас есть исключительная возможность приобрести жилье в историческом центре города Полтава на Круглой Площади (в наши дни Корпусный Сад(парк)).

      Продажа 3-х комнатной квартиры в Центре, в р-не Корпусного Парка…

      Детальніше

      П.Юрченка (г. Полтава, Киевский район) - Продається квартира, 60000 $ - АФНУ

      Оновлено: 12 вересня

      Розміщено: 28 серпня 2020

      Продається квартира

      3 кімн., площа 79.6/54.3/8.6, поверх 1/4

      г. Полтава, П.Юрченка

      60000 $ без комісії

      Остапченко Александр Степанович

      соучредитель (Агентство недвижимости "Альянс риэлти" Полтава)

      Продажа 3 комнатной квартиры в кирпичном доме в Авиагородке по ул. П.Юрченка
      Характеристика квартиры:
      - общая площадь - 79, м.кв;
      - жилая площадь - 54,3 м.кв;
      - кухня - 8,6…

      Детальніше

      ул. Станиславского (г. Полтава, Октябрьский район) - Продається квартира, 55000 $ - АФНУ

      Оновлено: 24 вересня

      Розміщено: 5 квітня 2024

      Продається квартира

      2 кімн., площа 48.6/13.6/22.1, поверх 1/9

      г. Полтава, ул. Станиславского

      55000 $

      Остапченко Александр Степанович

      соучредитель (Агентство недвижимости "Альянс риэлти" Полтава)

      Продам 2 кімнатну квартиру (апартаменти з однією спальнею) у Полтаві, на м-ні Сади-3, по вул. Станіславського в новому цегляному будинку з 5-річним ремонтом, встановлено лічильник на систему опалення, гарячого та…

      Детальніше

      Коментарі