Вхід на сайт

Ел. пошта:
Пароль:

Реєстрація на сайті

Призвіще: Область:
Ім'я: Населений пункт:
    По батькові: Номер телефону:
    Ел. пошта: Компанія:
      Пароль: Посада:
      Повторіть пароль: Рік початку роботи:
      Фото:
      З правилами розміщення об'єктів погоджуюсь

      Забули пароль?

      Вкажіть ел. пошту — ми надішлемо Вам новий пароль для входу
      Ел. пошта:

      Проблема на сайті

      Закрити
      Ваш e-mail:
      (необов'язково)
      Розкажіть нам, що сталось

      _________.jpg

      ул. Независимости Украины — Здається торгівельний майданчик

      (г. Кривой Рог, Долгинцевский район)

      200 грн. за кв.м.

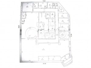
      Загальна площа: 254 кв.м

      Пропонуємо в оренду приміщення в Торговому Комплексі, що розташований по вул. Незалежності України

      Про об'єкт:
      - загальна площа - 254кв.м.
      - вільного планування, в хорошому стані,

      Комунікації:
      - електроенергія - 380V
      - автономне газове опалення - відключено
      - вода, каналізація
      - Інтернет

      Локація:
      Навпроти супермаркет VARUS, магазини, дитячий садок, поліклініка сімейних лікарів.

      Оренда 200грн/кв.м. + комун. платежі.
      Послуга агенції 50%.

      За будь-якими питаннями за цією або схожими пропозиціями звертайтесь за номером телефону, де вам відповість наш ріелтор 097 541 73 31.

      З повагою, команда Credo!

      Надіслати скаргу

      Закрити
      Поскаржитися на об'єкт «ул. Независимости Украины (г. Кривой Рог, Долгинцевский район)»
      Ваш коментар:(Необов'язково)
      Ваша скарга буде надіслана ріелтору, що розмістив об'єкт, а також адміністрації сайту АФНУ.
      Ваше ім'я:
      (Обов'язково)
      Ваш e-mail для відповіді:
      (Обов'язково)

      Вам также могут подойти

      Соборності (г. Кривой Рог, Дзержинский район) - Здається торгівельний майданчик, 180 грн. за кв.м. - АФНУ

      Оновлено: 30 січня

      Розміщено: 16 серпня 2023

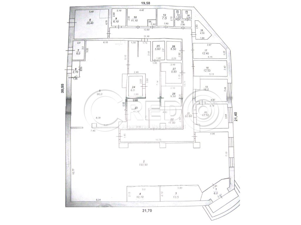
      Здається торгівельний майданчик

      площа 227, поверх 2/2

      г. Кривой Рог, Соборності

      180 грн. за кв.м.

      Літвинова Ірина Вікторівна

      Оренда приміщення на "Соцмісті"
      - вул. Соборності
      - Металлургійний район
      - "червона лінія"

      Технічні характеристики:
      - другий поверх окремої 2-х поверхової будівлі
      - загальна площа - 227 кв.м,
      - торгівельна…

      Детальніше

      Володимира Великого (г. Кривой Рог, Саксаганский район) - Здається торгівельний майданчик, 250 грн. за кв.м. - АФНУ

      Оновлено: вчора

      Розміщено: 16 травня 2025

      Здається торгівельний майданчик

      площа 562, поверх 1/9

      г. Кривой Рог, Володимира Великого

      250 грн. за кв.м.

      Літвинова Ірина Вікторівна

      Оренда торгового приміщення вул.Володимира Великого
      Саксаганський район

      Технічні характеристики:
      - перший поверх 9-ти поверхового житлового будинку
      - "червона лінія"
      - в приміщенні зроблено капітальний ремонт

      Планування об’єкту:
      - загальна площа…

      Детальніше

      пл. 95 - Квартал (г. Кривой Рог, Саксаганский район) - Здається торгівельний майданчик, 250 грн. за кв.м. - АФНУ

      Оновлено: 23 лютого

      Розміщено: 22 серпня 2025

      Здається торгівельний майданчик

      площа 530, поверх 1/4

      г. Кривой Рог, пл. 95 - Квартал

      250 грн. за кв.м.

      Літвинова Ірина Вікторівна

      Оренда приміщення в ТК на 95 кварталі
      - Саксаганський район
      - пл. 95 квартал

      Технічні характиристики:
      - окрема будівля
      - 1-й та 2-й поверх 4-поверхового торгівельного комплексу
      - окремий вхід…

      Детальніше

      Коментарі