Вхід на сайт

Ел. пошта:
Пароль:

Реєстрація на сайті

Призвіще: Область:
Ім'я: Населений пункт:
    По батькові: Номер телефону:
    Ел. пошта: Компанія:
      Пароль: Посада:
      Повторіть пароль: Рік початку роботи:
      Фото:
      З правилами розміщення об'єктів погоджуюсь

      Забули пароль?

      Вкажіть ел. пошту — ми надішлемо Вам новий пароль для входу
      Ел. пошта:

      Проблема на сайті

      Закрити
      Ваш e-mail:
      (необов'язково)
      Розкажіть нам, що сталось

      _________.jpg

      без комісії відродження, 18 — Продається офіс

      (г. Луцк)

      22000 $

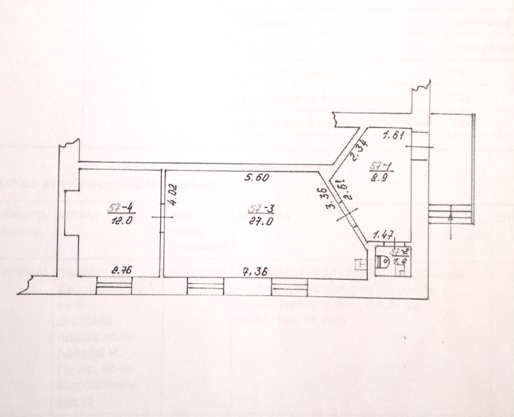
      Загальна площа: 25 кв.м

      Кімнат: 1

      Поверх: 1

      К-ть поверхів: 5

      Продаж 1/2 приміщення по пр. Відродження для стоматолога

      Відео: youtube.com/watch?v=DuXdMidtVv8

      Розташування: по пр. Відродження, 18. Розвинена інфраструктура: SPAR, піцерія, Експрес Там Там, магазини одягу, аптеки.

      Зручна транспортна розв’язка:
      0 відстань до Експрес Там Там– 150 м
      0 відстань до готелю Лучеськ – 700 м.
      0 відстань до ТЦ Гостинець – 1,5 км

      Характеристики:
      -площа 24,6 м.кв. (1/2 з 49,3 м.кв.)
      -санвузол
      -місце під фасадну вивіску
      -стоматологічне крісло як бонус при покупці (потребує обслуговування)

      Ідеальний варіант для стоматолога з низьким фінансовим порогом входу, гарна кооперація з діючим стоматологом!

      Об'єкт продається за 22 000 USD. БЕЗ КОМІСІЇ для покупця

      Для детальнішої інформації пишіть або телефонуйте
      0958051772 (viber+telegram+whatsapp)
      Ольга Синиця

      Надіслати скаргу

      Закрити
      Поскаржитися на об'єкт «відродження, 18 (г. Луцк)»
      Ваш коментар:(Необов'язково)
      Ваша скарга буде надіслана ріелтору, що розмістив об'єкт, а також адміністрації сайту АФНУ.
      Ваше ім'я:
      (Обов'язково)
      Ваш e-mail для відповіді:
      (Обов'язково)

      Вам также могут подойти

      пр. Воли, 15 (г. Луцк, Центр) - Здається офіс, 20000 грн. - АФНУ

      Оновлено: 11 грудня 2025

      Розміщено: 11 грудня 2025

      Здається офіс

      3 кімн., площа 61.1, поверх 1/-

      г. Луцк, пр. Воли, 15

      20000 грн. без комісії

      Данкін Олександр Олександрович

      керівник відділу комерційної нерухомості (Компанія "Атланта Нерухомість")

      Характеристики:
      • Перший поверх
      • Окремий вхід
      • Площа - 61,1 кв.м.
      • 3 кабінети
      • Високі стелі
      • Санвузол

      Комунікації:
      Водопостачання, каналізація;
      Електроенергія;
      Централізоване опалення.

      Стан:
      Без ремонту (ремонт…

      Детальніше

      пр. Воли, 15 (г. Луцк, Центр) - Здається офіс, 20000 грн. - АФНУ

      Оновлено: 11 грудня 2025

      Розміщено: 11 грудня 2025

      Здається офіс

      3 кімн., площа 61.1, поверх 1/-

      г. Луцк, пр. Воли, 15

      20000 грн. без комісії

      Данкін Олександр Олександрович

      керівник відділу комерційної нерухомості (Компанія "Атланта Нерухомість")

      Характеристики:
      • Перший поверх
      • Окремий вхід
      • Площа - 61,1 кв.м.
      • 3 кабінети
      • Високі стелі
      • Санвузол

      Комунікації:
      Водопостачання, каналізація;
      Електроенергія;
      Централізоване опалення.

      Стан:
      Без ремонту (ремонт…

      Детальніше

      Коментарі