Вхід на сайт

Ел. пошта:
Пароль:

Реєстрація на сайті

Призвіще: Область:
Ім'я: Населений пункт:
    По батькові: Номер телефону:
    Ел. пошта: Компанія:
      Пароль: Посада:
      Повторіть пароль: Рік початку роботи:
      Фото:
      З правилами розміщення об'єктів погоджуюсь

      Забули пароль?

      Вкажіть ел. пошту — ми надішлемо Вам новий пароль для входу
      Ел. пошта:

      Проблема на сайті

      Закрити
      Ваш e-mail:
      (необов'язково)
      Розкажіть нам, що сталось

      _________.jpg

      Небесной Сотни, 15 — Продається офіс

      (г. Полтава, Октябрьский район)

      120000 $

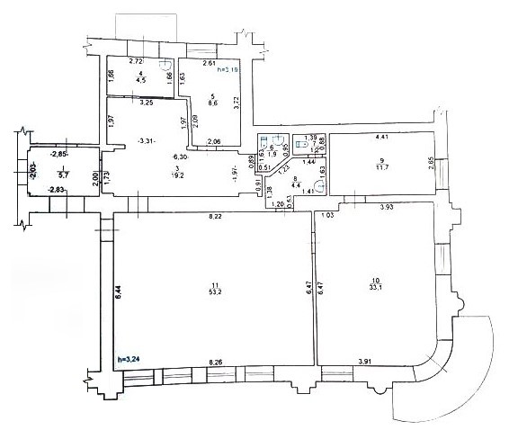
      Загальна площа: 149.2 кв.м

      Кімнат: 6

      Поверх: 2

      К-ть поверхів: 3

      Продажа торгово-офисного помещения общей площадью 149,2 м2 в Центре Полтавы на ул. Н. Сотни, 15 (в районе Областной библиотеки, ост. Краеведческий музей) , на 2 этаже по улице Небесной Сотни, вход с фасадной части дома

      Описание и характеристика помещений и зданий:
      - торгово- офисное помещение- 53, 2 м2
      - кабинет- 33, 1 м2
      - кабинет- 11, 7 м2
      - кабинет- 19,2 м2
      - кабинет- 8,6 м2
      - кабинет- 4,5 м2
      - санузел- 5, 6 м2
      - санузел- 1,9 м2
      - два балкона

      Стоимость: $120 000 + услуги агентства недвижимости

      Надіслати скаргу

      Закрити
      Поскаржитися на об'єкт «Небесной Сотни, 15 (г. Полтава, Октябрьский район)»
      Ваш коментар:(Необов'язково)
      Ваша скарга буде надіслана ріелтору, що розмістив об'єкт, а також адміністрації сайту АФНУ.
      Ваше ім'я:
      (Обов'язково)
      Ваш e-mail для відповіді:
      (Обов'язково)

      Вам также могут подойти

      Н. Сотни (г. Полтава, Ленинский район) - Продається офіс, 120000 $ - АФНУ

      Оновлено: 5 березня

      Розміщено: 13 серпня 2024

      Продається офіс

      9 кімн., площа 164, поверх 1/-

      г. Полтава, Н. Сотни

      120000 $

      Остапченко Александр Степанович

      соучредитель (Агентство недвижимости "Альянс риэлти" Полтава)

      Продаж офісного приміщення на Подолі по вул. Н. Сотні (зуп. Оптика, р-н маг. АТБ) з окремим входом з фасаду будинку, загальною площею 164 м2 на 9 кабінетів
      Характеристики:
      -1 поверх,…

      Детальніше

      Коментарі