Вхід на сайт

Ел. пошта:
Пароль:

Реєстрація на сайті

Призвіще: Область:
Ім'я: Населений пункт:
    По батькові: Номер телефону:
    Ел. пошта: Компанія:
      Пароль: Посада:
      Повторіть пароль: Рік початку роботи:
      Фото:
      З правилами розміщення об'єктів погоджуюсь

      Забули пароль?

      Вкажіть ел. пошту — ми надішлемо Вам новий пароль для входу
      Ел. пошта:

      Проблема на сайті

      Закрити
      Ваш e-mail:
      (необов'язково)
      Розкажіть нам, що сталось

      _________.jpg

      Стрітенська — Продається квартира

      (г. Полтава, Октябрьский район)

      46000 $

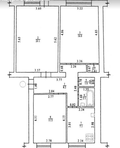
      Загальна площа: 68.7 кв.м

      Жила площа: 47.6 кв.м

      Площа кухні: 7.1 кв.м

      Кімнат: 3

      Поверх: 1

      К-ть поверхів: 5

      Продаж 3 кімнатної квартири (чеський проект) в Центрі Полтави в р-ні вул. Стрітенської, 7
      Характеристика квартири:
      - Загальна площа - 68, 7 кв.м;
      - Житлова площа - 47, 6 кв.м;
      --- кімната-20, 1 кв.м;
      --- кімната-16, 0 кв.м;
      --- кімната-11, 5 кв.м
      - Кухня - 7, 1 кв.м;
      - Поверх - 1/5 пов. цегляного будинку
      - Балкон по ширині 2-х кімнат
      - Чи не кутова
      комунікації:
      - централізовані;
      - підігрів води - газова колонка,
      - лічильники на світло, газ, опалення-лічильник на будинок.
      стан:
      - під ремонт
      Вартість: $ 46000

      Надіслати скаргу

      Закрити
      Поскаржитися на об'єкт «Стрітенська (г. Полтава, Октябрьский район)»
      Ваш коментар:(Необов'язково)
      Ваша скарга буде надіслана ріелтору, що розмістив об'єкт, а також адміністрації сайту АФНУ.
      Ваше ім'я:
      (Обов'язково)
      Ваш e-mail для відповіді:
      (Обов'язково)

      Коментарі