Вхід на сайт

Ел. пошта:
Пароль:

Реєстрація на сайті

Призвіще: Область:
Ім'я: Населений пункт:
    По батькові: Номер телефону:
    Ел. пошта: Компанія:
      Пароль: Посада:
      Повторіть пароль: Рік початку роботи:
      Фото:
      З правилами розміщення об'єктів погоджуюсь

      Забули пароль?

      Вкажіть ел. пошту — ми надішлемо Вам новий пароль для входу
      Ел. пошта:

      Проблема на сайті

      Закрити
      Ваш e-mail:
      (необов'язково)
      Розкажіть нам, що сталось

      _________.jpg

      ул. Гожулянская, 26 — Здається торгівельний майданчик

      (г. Полтава, Киевский район)

      100 грн. за кв.м.

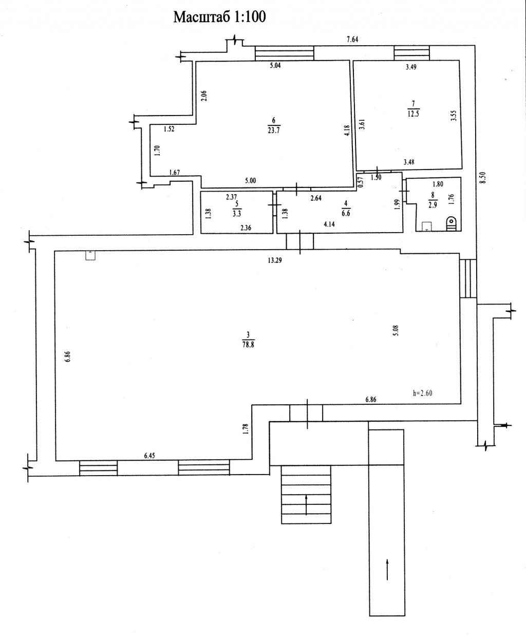
      Загальна площа: 127.8 кв.м

      Поверх: 1

      К-ть поверхів: 9

      Здам в оренду торгово-офісного приміщення загальною площею 127,8 м.кв в районі нової забудови на вул. Гожулянській, 26, на 1 поверсі, два вікна та вхід на фасад будівлі

      Характеристика приміщення:
      - загальна площа – 127,8 м.кв;
      - торговий зал-78,8 м.кв;
      - друга зала -23,7 м.кв;
      - кабінет-12,5 м.кв;
      - санвузол;
      - Висота Н = 2,6 м;
      - перекриття з/б

      Комунікації/стан:
      - централізований, тепловий лічильник на опалення (кришна котельня);
      - Поверх - перший;
      - матеріал стін-цегла;
      - потужність електричної мережі-30 кВт

      - Вартість оренди: 12 700 грн/міс (оплата перший та останній місяць) + комунальні послуги + одноразова комісія АН 50%.

      Надіслати скаргу

      Закрити
      Поскаржитися на об'єкт «ул. Гожулянская, 26 (г. Полтава, Киевский район)»
      Ваш коментар:(Необов'язково)
      Ваша скарга буде надіслана ріелтору, що розмістив об'єкт, а також адміністрації сайту АФНУ.
      Ваше ім'я:
      (Обов'язково)
      Ваш e-mail для відповіді:
      (Обов'язково)

      Коментарі