Вхід на сайт

Ел. пошта:
Пароль:

Реєстрація на сайті

Призвіще: Область:
Ім'я: Населений пункт:
    По батькові: Номер телефону:
    Ел. пошта: Компанія:
      Пароль: Посада:
      Повторіть пароль: Рік початку роботи:
      Фото:
      З правилами розміщення об'єктів погоджуюсь

      Забули пароль?

      Вкажіть ел. пошту — ми надішлемо Вам новий пароль для входу
      Ел. пошта:

      Проблема на сайті

      Закрити
      Ваш e-mail:
      (необов'язково)
      Розкажіть нам, що сталось

      _________.jpg

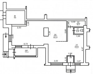
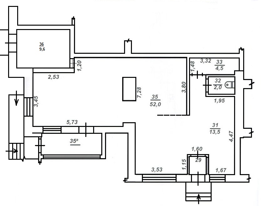
      ул. Олимпийская, 9 А — Продається офіс

      (г. Харьков, Фрунзенский район)

      760 $ за кв.м.

      Загальна площа: 88 кв.м

      Поверх: 1

      К-ть поверхів: 9

      Продажа помещения с ремонтом ул. Олимпийская, 9 А:
      • площадь 88 м2;
      • 1-й этаж из 9;
      • цена продажи 760 USD/м2;
      • подойдет под мед. центр, магазин, салон, курсы, офис и др. виды деятельности;

      Доходность 8,86 % годовых в USD при курсе 28,3 грн/1 USD и при текущем арендаторе.

      Планировка:
      • 3 входа;
      • помещение open space;
      • кабинет;
      • подсобка;

      Характеристики объекта:
      • ремонт в отличном состоянии;
      • есть все необходимые коммуникации;
      • можно с арендаторами;

      Преимущества:
      • 20 мин пешком до ст.м. Дворец Спорта;
      • 10 мин пешком до супермаркета АТБ;
      • 6 мин пешком до отделения Новой почты;

      Остались вопросы?
      Пишите Viber / Telegram или звоните + 38 (095) 769-73-33, мы с радостью Вам ответим.
      компания stepREALTY

      Надіслати скаргу

      Закрити
      Поскаржитися на об'єкт «ул. Олимпийская, 9 А (г. Харьков, Фрунзенский район)»
      Ваш коментар:(Необов'язково)
      Ваша скарга буде надіслана ріелтору, що розмістив об'єкт, а також адміністрації сайту АФНУ.
      Ваше ім'я:
      (Обов'язково)
      Ваш e-mail для відповіді:
      (Обов'язково)

      Коментарі