Вхід на сайт

Ел. пошта:
Пароль:

Реєстрація на сайті

Призвіще: Область:
Ім'я: Населений пункт:
    По батькові: Номер телефону:
    Ел. пошта: Компанія:
      Пароль: Посада:
      Повторіть пароль: Рік початку роботи:
      Фото:
      З правилами розміщення об'єктів погоджуюсь

      Забули пароль?

      Вкажіть ел. пошту — ми надішлемо Вам новий пароль для входу
      Ел. пошта:

      Проблема на сайті

      Закрити
      Ваш e-mail:
      (необов'язково)
      Розкажіть нам, що сталось

      _________.jpg

      ул. Погребняка — Продається торгівельний майданчик

      (г. Кривой Рог, Центрально-Городской район)

      119000 $

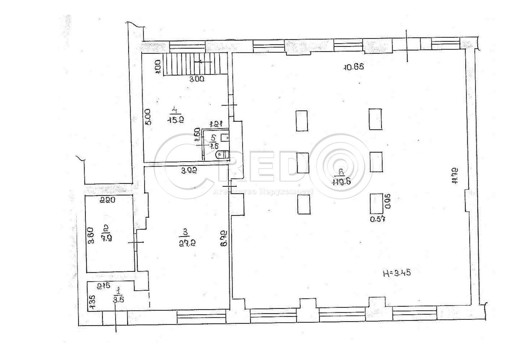
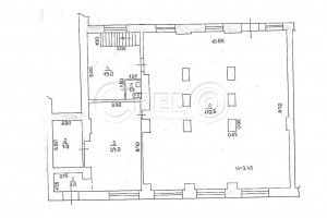
      Загальна площа: 193 кв.м

      Поверх: 1

      К-ть поверхів: 3

      Продаж магазину на "Карачунах".
      - Центрально Міський район
      - вул. Алмазна, 4

      Технічні характеристики:
      - перший поверх 5-ти поверхового житлового будинку
      - "червона лінія"
      - приміщення в робочому станні
      - великі вітражні вікна
      - парковка

      Планування об’єкту:
      - загальна площа -193 кв.м
      - перший поверх-175 кв.м
      - Н=3,45м
      - другий поверх-18 кв.м
      - Н=2,14м
      - окремий центральний та додатковий входи

      Комунікації:
      - центральне електропостачання 20кВт; 380 Вт
      - центральне водопостачання, каналізація
      - пожежна, охоронна сигналізації
      - кондиціонери

      Логістична розв’язка:
      - приміщення розташоване в спальному мікрорайоні
      - поруч зупинка громадського транспорту
      - магазини, аптеки та безліч інших магазинів
      - великий автомобільний та пішохідний трафік
      Продаж 119 000 у.о.

      За будь-якими питаннями за цією або іншими пропозиціями звертайтесь 067 696 16 51.
      З повагою, команда Credo!

      Надіслати скаргу

      Закрити
      Поскаржитися на об'єкт «ул. Погребняка (г. Кривой Рог, Центрально-Городской район)»
      Ваш коментар:(Необов'язково)
      Ваша скарга буде надіслана ріелтору, що розмістив об'єкт, а також адміністрації сайту АФНУ.
      Ваше ім'я:
      (Обов'язково)
      Ваш e-mail для відповіді:
      (Обов'язково)

      Вам также могут подойти

      Недєліна (г. Кривой Рог, Ингулецкий район) - Продається торгівельний майданчик, 120000 $ - АФНУ

      Оновлено: 19 грудня 2025

      Розміщено: 29 жовтня 2025

      Продається торгівельний майданчик

      площа 235, поверх 1/9

      г. Кривой Рог, Недєліна

      120000 $

      Літвинова Ірина Вікторівна

      Продаж магазину в центрі Інгульця
      - вул. Недєліна,28
      - Інгулецький район

      Технічні характеристики:
      - перший поверх 9-ти поверхового житлового будинку
      - "червона лінія"
      - приміщення в робочому стані
      - великий…

      Детальніше

      пр. Гагарина (г. Кривой Рог, Дзержинский район) - Продається торгівельний майданчик, 130000 $ - АФНУ

      Оновлено: 20 січня

      Розміщено: 13 листопада 2025

      Продається торгівельний майданчик

      площа 129, поверх 1/4

      г. Кривой Рог, пр. Гагарина

      130000 $

      Літвинова Ірина Вікторівна

      Продаж нежитлового приміщення пр.Університетський «Червона лінія», «97 квартал».
      Приміщення для ресторанної концепції з літнім майданчиком та власним парко-місцем для клієнтів.
      Добре проглядається з проїзної частини, зручні під’їздні шляхи.
      Розвинена іфраструктура,…

      Детальніше

      Коментарі