Вхід на сайт

Ел. пошта:
Пароль:

Реєстрація на сайті

Призвіще: Область:
Ім'я: Населений пункт:
    По батькові: Номер телефону:
    Ел. пошта: Компанія:
      Пароль: Посада:
      Повторіть пароль: Рік початку роботи:
      Фото:
      З правилами розміщення об'єктів погоджуюсь

      Забули пароль?

      Вкажіть ел. пошту — ми надішлемо Вам новий пароль для входу
      Ел. пошта:

      Проблема на сайті

      Закрити
      Ваш e-mail:
      (необов'язково)
      Розкажіть нам, що сталось

      _________.jpg

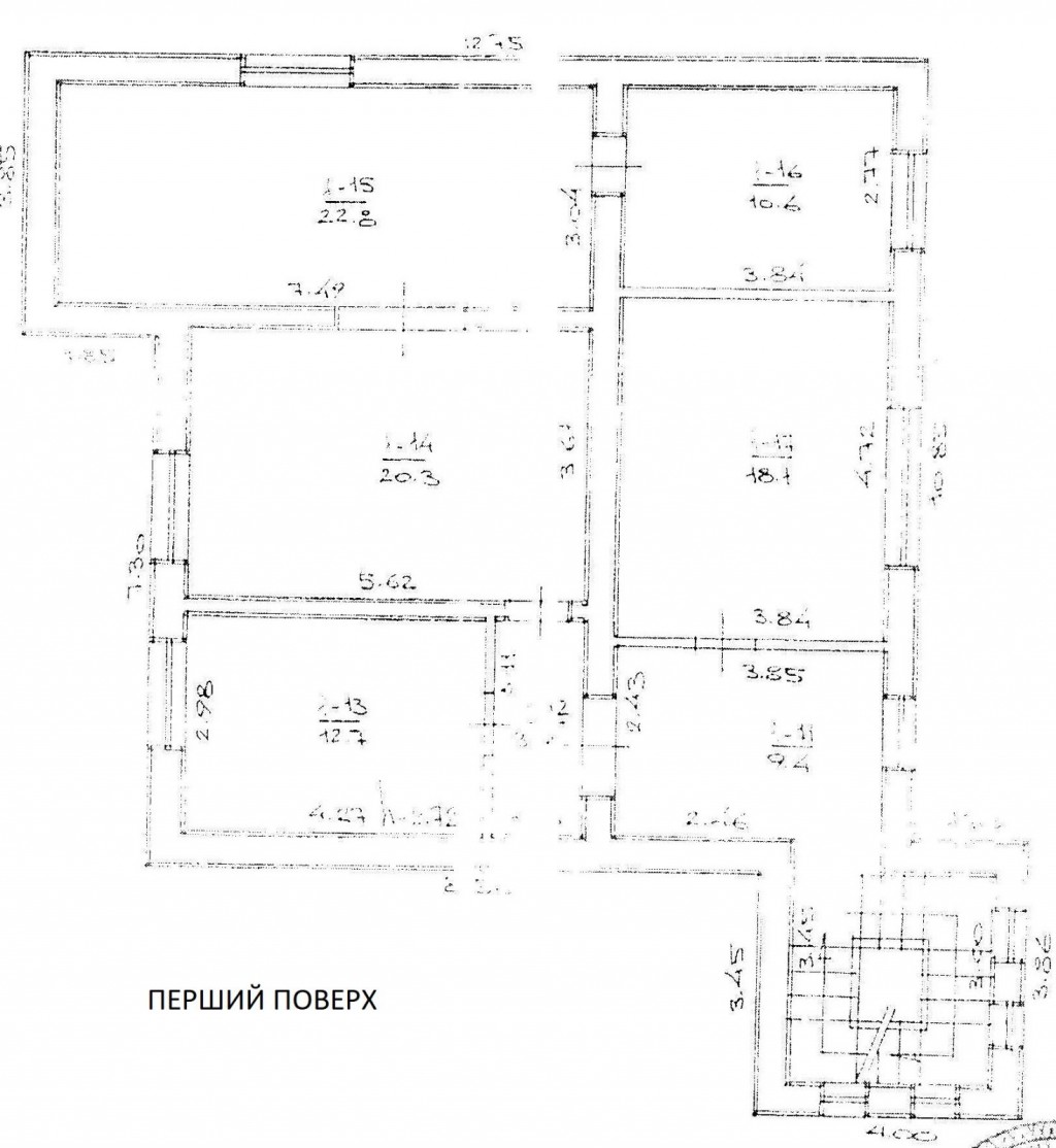
      без комісії ул. Чорновола — Продається будинок

      (пгт. Великий Любинь, Городокский район)

      39000 $

      Загальна площа: 330 кв.м

      Площа ділянки: 12 сот

      К-ть поверхів: 3

      Продаж будинку в смт. Великий Любінь. Будинок розташований в обжитому районі, поблизу центру селища, вул. В.Чорновола. Загальна площа становить 330 кв. м.: нульовий поверх (135 кв.м), перший поверх (98кв.м), другий (98кв.м) + мансарда. Будинок збудований за чудовим проектом і дуже якісно. Комунікації підведені до будинку. Будинок розташований на ділянці 12 сот., де ще знаходиться господарська будівля.
      Будинок також можна розглядати як комерційний проект під санаторно-лікувальні цілі, адже до будинку виведена свердловина з сірководневою лікувальною водою.

      Надіслати скаргу

      Закрити
      Поскаржитися на об'єкт «ул. Чорновола (пгт. Великий Любинь, Городокский район)»
      Ваш коментар:(Необов'язково)
      Ваша скарга буде надіслана ріелтору, що розмістив об'єкт, а також адміністрації сайту АФНУ.
      Ваше ім'я:
      (Обов'язково)
      Ваш e-mail для відповіді:
      (Обов'язково)

      Коментарі