Вхід на сайт

Ел. пошта:
Пароль:

Реєстрація на сайті

Призвіще: Область:
Ім'я: Населений пункт:
    По батькові: Номер телефону:
    Ел. пошта: Компанія:
      Пароль: Посада:
      Повторіть пароль: Рік початку роботи:
      Фото:
      З правилами розміщення об'єктів погоджуюсь

      Забули пароль?

      Вкажіть ел. пошту — ми надішлемо Вам новий пароль для входу
      Ел. пошта:

      Проблема на сайті

      Закрити
      Ваш e-mail:
      (необов'язково)
      Розкажіть нам, що сталось

      _________.jpg

      ул. Карабиновская, 5 — Продається будинок

      (г. Днепр, Бабушкинский район)

      250000 $

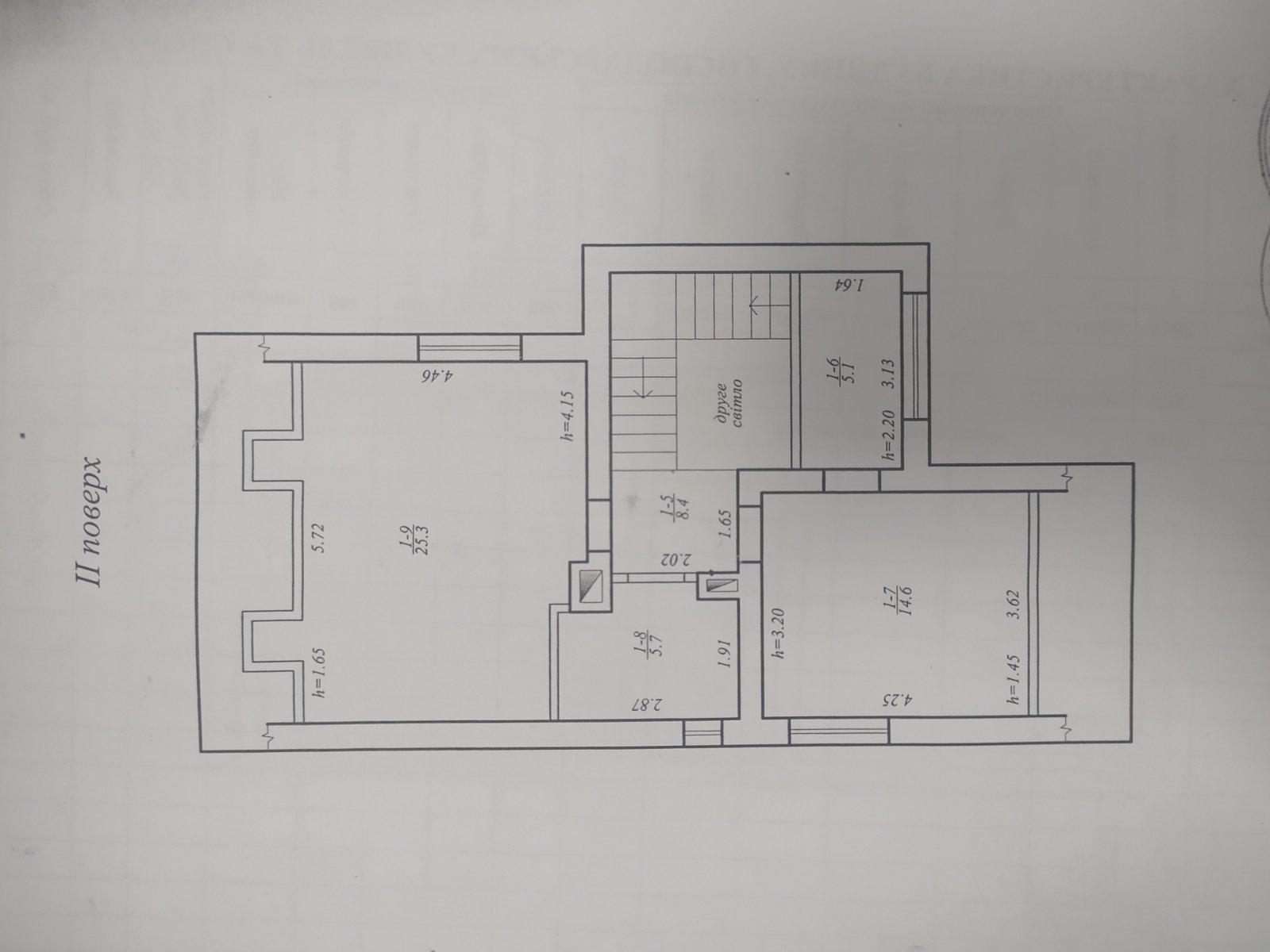
      Загальна площа: 138 кв.м

      Площа ділянки: 3 сот

      Кімнат: 3

      К-ть поверхів: 2

      Интересное предложение в самом центре города! Ул. Карабиновская. Тихое место и хорошие соседи.
      Дом построен в 2016 году, ремонт сделан в 2020 году.
      Построен из газобетона, снаружи утеплен минеральной ватой.
      Кровля- металлочерепица, гидро и термо изоляция.
      Электричество- 3 фазы, 17 кВт.
      Вода и канализация- гентрализованные.
      Газ на участке.
      Дизайн выполнен в минималистическом стиле.
      138м, 2 этажа. 3 комнаты. Интересная, продуманная планировка, со встроенными шкафами и гардеробными.
      На первом этаже - большая просторная кухня, санузел. Гостиная с витражным остеклением для отдыха и совместного времяпровождения, с выходом на террасу, зону отдыха и барбекю.
      На втором этаже- две комнаты, гардеробная, санузел.
      Теплые полы, сигнализация.
      Стройматериалы привезены из Европы.
      Есть дизайнерский проект, который может быть подарен новому собственнику!
      Обращайтесь за более подробной информацией!

      Надіслати скаргу

      Закрити
      Поскаржитися на об'єкт «ул. Карабиновская, 5 (г. Днепр, Бабушкинский район)»
      Ваш коментар:(Необов'язково)
      Ваша скарга буде надіслана ріелтору, що розмістив об'єкт, а також адміністрації сайту АФНУ.
      Ваше ім'я:
      (Обов'язково)
      Ваш e-mail для відповіді:
      (Обов'язково)

      Коментарі