Вхід на сайт

Ел. пошта:
Пароль:

Реєстрація на сайті

Призвіще: Область:
Ім'я: Населений пункт:
    По батькові: Номер телефону:
    Ел. пошта: Компанія:
      Пароль: Посада:
      Повторіть пароль: Рік початку роботи:
      Фото:
      З правилами розміщення об'єктів погоджуюсь

      Забули пароль?

      Вкажіть ел. пошту — ми надішлемо Вам новий пароль для входу
      Ел. пошта:

      Проблема на сайті

      Закрити
      Ваш e-mail:
      (необов'язково)
      Розкажіть нам, що сталось

      _________.jpg

      пл. Дзержинского — Здається офіс

      (г. Кривой Рог, Саксаганский район)

      100 грн. за кв.м.

      Загальна площа: 100 кв.м

      Кімнат: 1

      Поверх: 2

      К-ть поверхів: 3

      Оренда офісів на "Дзержинці".
      пл. Шахтарської Слави
      Саксаганський район

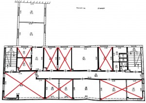
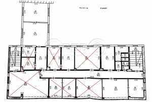
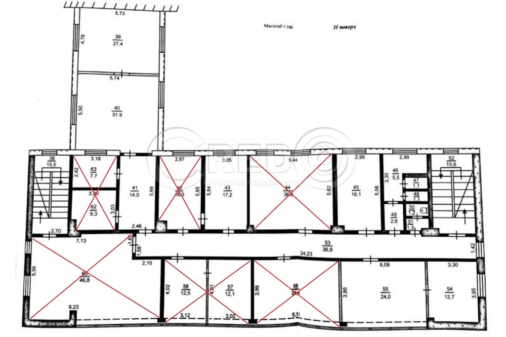
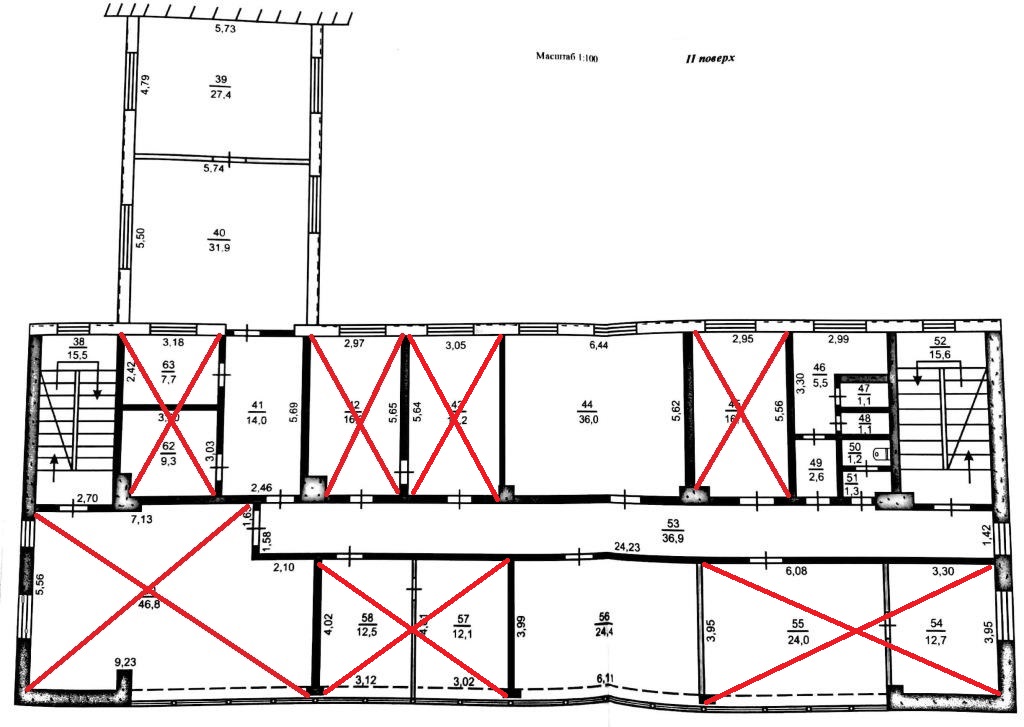
      Про об’єкт:
      - район Дзержинка
      -окремо розташована будівля
      - офіси на 2-му та 3-му поверхах

      Планування об’єкту:
      - загальна площа від 16 кв.м до 100 кв.м
      - парковка

      Комунікації:
      - центральне електропостачання
      - центральне водопостачання, каналізація
      - кондиціювання
      - охоронна сигналізація.

      Логістична розв’язка:
      - розташоване 500 м від пр.Миру
      - зупинка "1 міська лікарня"
      - поруч клініка "Ваш зір", магазини, кафе.

      Особливості приміщення:
      - бюджетні офіси
      - вільного призначення

      Додаткові витрати:
      - світло - лічильник
      - вода - лічильник
      - охорона
      - послуги агенції - 50 % від місячної оренди (одноразово)
      Оренда 100грн/кв.м.

      За будь-якими питаннями за цією або схожими пропозиціями звертайтесь за номером телефону 067 696 16 51.
      З повагою, команда Credo!

      Надіслати скаргу

      Закрити
      Поскаржитися на об'єкт «пл. Дзержинского (г. Кривой Рог, Саксаганский район)»
      Ваш коментар:(Необов'язково)
      Ваша скарга буде надіслана ріелтору, що розмістив об'єкт, а також адміністрації сайту АФНУ.
      Ваше ім'я:
      (Обов'язково)
      Ваш e-mail для відповіді:
      (Обов'язково)

      Вам также могут подойти

      ул. 22-го Партсъезда (г. Кривой Рог, Дзержинский район) - Здається офіс, 140 грн. за кв.м. - АФНУ

      Оновлено: 17 лютого

      Розміщено: 20 січня 2023

      Здається офіс

      4 кімн., площа 100, поверх 5/5

      г. Кривой Рог, ул. 22-го Партсъезда

      140 грн. за кв.м.

      Літвинова Ірина Вікторівна

      Оренда офісного приміщення
      - Металургійний район
      - вул. В. Матусевича

      Про об’єкт:
      - приміщення розташоване на 5-му поверсі 5-ти поверхової офісної будівлі
      - біля приміщення парковка

      Планування об’єкту:
      - загальна…

      Детальніше

      Коментарі