Вхід на сайт

Ел. пошта:
Пароль:

Реєстрація на сайті

Призвіще: Область:
Ім'я: Населений пункт:
    По батькові: Номер телефону:
    Ел. пошта: Компанія:
      Пароль: Посада:
      Повторіть пароль: Рік початку роботи:
      Фото:
      З правилами розміщення об'єктів погоджуюсь

      Забули пароль?

      Вкажіть ел. пошту — ми надішлемо Вам новий пароль для входу
      Ел. пошта:

      Проблема на сайті

      Закрити
      Ваш e-mail:
      (необов'язково)
      Розкажіть нам, що сталось

      _________.jpg

      ул. Троицкая — Продається торгівельний майданчик

      (г. Одесса, Приморский район)

      770000 $

      Загальна площа: 1000 кв.м

      Поверх: 3

      К-ть поверхів: 3

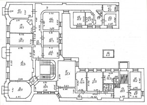
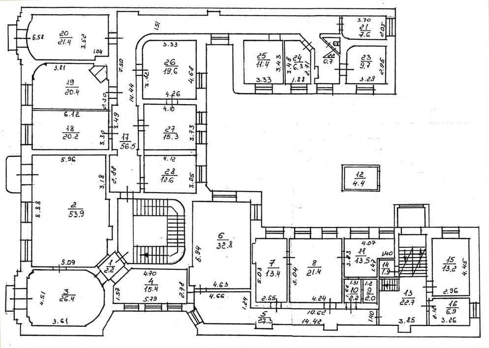
      Помещение под отель или апартаменты, 1000м ул. Троицкая угол Пушкинской

      Предлагается к продаже двухуровневое помещение в историческом здании по ул. Троицкая.
      Объект недвижимости расположен на третьем и мансардном полноценном этажах жилого дома. Общая площадь составляет1000кв.м. Окна выходят во двор и на фасад. Красивая реставрированная парадная с мраморной лестницей. Статус помещения – жилое. Есть проект на миниотель на 22 номера или отдельные квартиры, и смета окончательного ремонта.
      На данный момент объект находится в стадии реконструкции.

      Возможно использовать объект продажи под:
      -квартиру в двух уровнях (или 2 квартиры)
      -пентхаус,
      -гостиницу на 21 номер;
      -хостел.

      Продавец готов сопровождать объект на всех стадиях: проектная документация, строительные работы, ввод в эксплуатацию и оформление права собственности

      Надіслати скаргу

      Закрити
      Поскаржитися на об'єкт «ул. Троицкая (г. Одесса, Приморский район)»
      Ваш коментар:(Необов'язково)
      Ваша скарга буде надіслана ріелтору, що розмістив об'єкт, а також адміністрації сайту АФНУ.
      Ваше ім'я:
      (Обов'язково)
      Ваш e-mail для відповіді:
      (Обов'язково)

      Коментарі