Вхід на сайт

Ел. пошта:
Пароль:

Реєстрація на сайті

Призвіще: Область:
Ім'я: Населений пункт:
    По батькові: Номер телефону:
    Ел. пошта: Компанія:
      Пароль: Посада:
      Повторіть пароль: Рік початку роботи:
      Фото:
      З правилами розміщення об'єктів погоджуюсь

      Забули пароль?

      Вкажіть ел. пошту — ми надішлемо Вам новий пароль для входу
      Ел. пошта:

      Проблема на сайті

      Закрити
      Ваш e-mail:
      (необов'язково)
      Розкажіть нам, що сталось

      _________.jpg

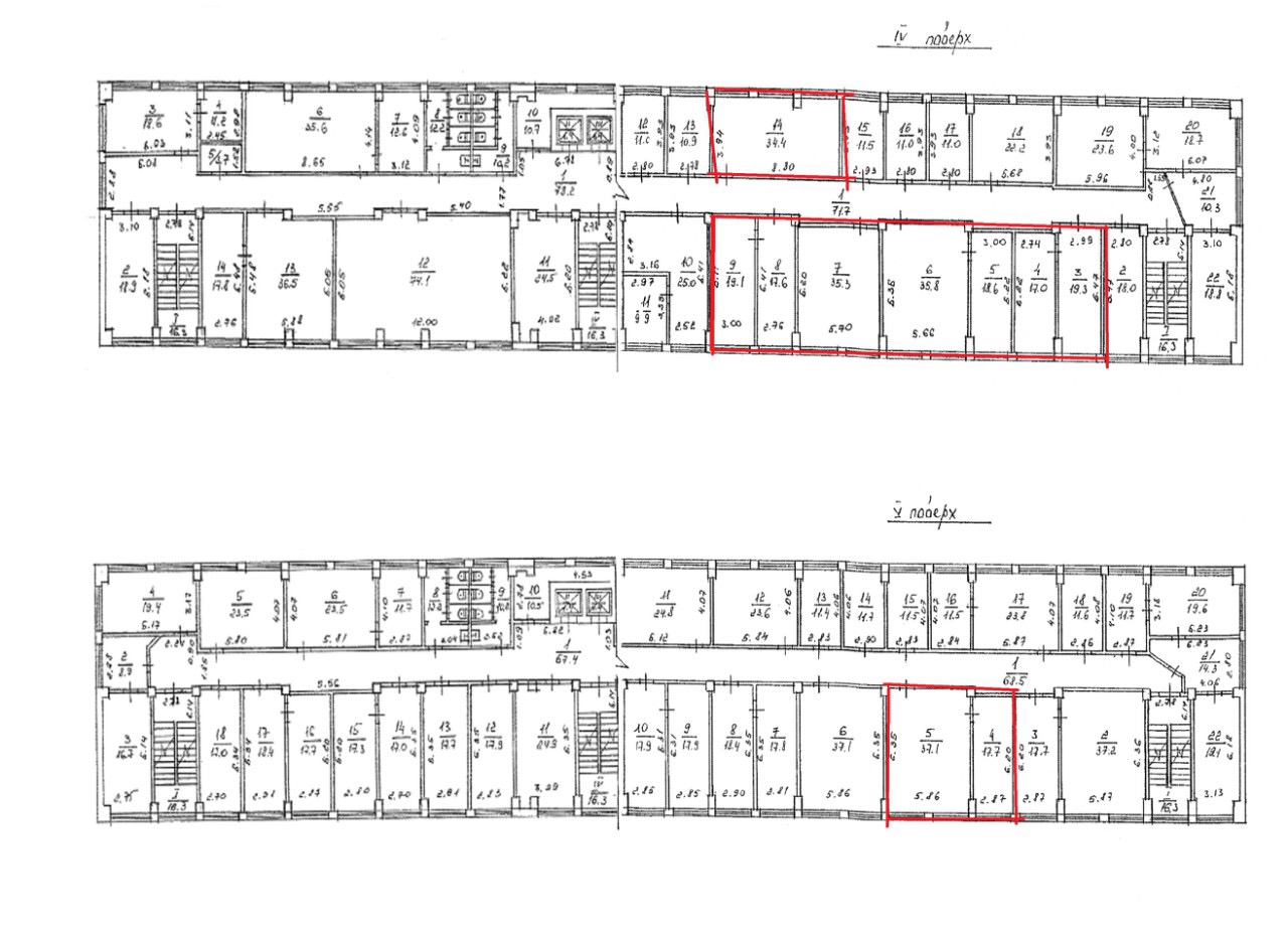
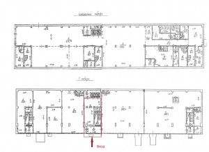
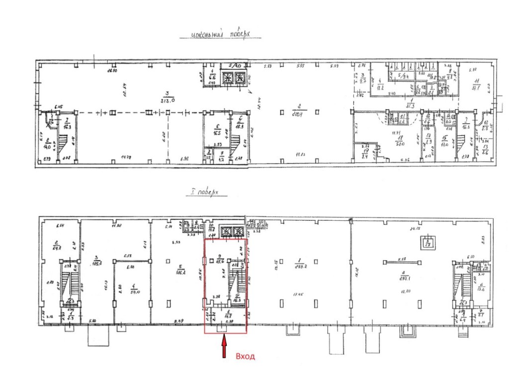
      ул. Балковская, 120/1 — Продається офіс

      (г. Одесса, Малиновский район)

      2700000 $

      Загальна площа: 6530 кв.м

      Поверх: 1

      К-ть поверхів: 6

      Бизнес-центр под магазины, офисы. Балковская

      Предлагается к продаже отдельностоящее 6-ти этажное здание общей площадью 6 530 м2, расположенное по адресу: г. Одесса, ул. Балковская 120/1. Собственник юридическое лицо

      Ввод в эксплуатацию - 1989 год.
      Выполнен ремонт и замена оборудования.
      установленоно 2-е автономных газовых котельных, мощностью до 100 кВт (котлы Альтаир), отдельный ввод электро- (300 кВт) и водо- снабжения.
      Полностью заполнено арендаторами.

      Надіслати скаргу

      Закрити
      Поскаржитися на об'єкт «ул. Балковская, 120/1 (г. Одесса, Малиновский район)»
      Ваш коментар:(Необов'язково)
      Ваша скарга буде надіслана ріелтору, що розмістив об'єкт, а також адміністрації сайту АФНУ.
      Ваше ім'я:
      (Обов'язково)
      Ваш e-mail для відповіді:
      (Обов'язково)

      Коментарі