Вхід на сайт

Ел. пошта:
Пароль:

Реєстрація на сайті

Призвіще: Область:
Ім'я: Населений пункт:
    По батькові: Номер телефону:
    Ел. пошта: Компанія:
      Пароль: Посада:
      Повторіть пароль: Рік початку роботи:
      Фото:
      З правилами розміщення об'єктів погоджуюсь

      Забули пароль?

      Вкажіть ел. пошту — ми надішлемо Вам новий пароль для входу
      Ел. пошта:

      Проблема на сайті

      Закрити
      Ваш e-mail:
      (необов'язково)
      Розкажіть нам, що сталось

      _________.jpg

      ул. Софьи Перовской — Продається торгівельний майданчик

      (г. Кривой Рог, Саксаганский район)

      14800 $

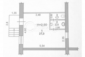
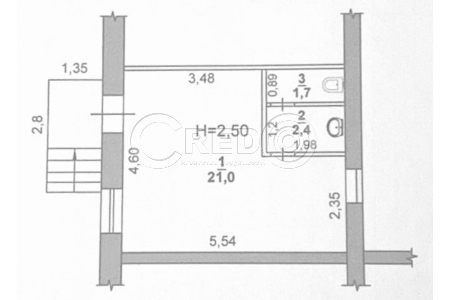
      Загальна площа: 25 кв.м

      Поверх: 1

      К-ть поверхів: 5

      Продається приміщення в районі зупинки «Площі В. Великого», вулиця Софії Перовської.

      Про об'єкт:
      - Загальна площа - 25,1 кв.м.

      Особливості:
      - Зроблений новий євроремонт 2022р.
      - Поміняна каналізація, проводка, бойлер (50л), вікно та двері м/пл.

      Комунікації:
      - Електроенергія 10кВт
      - Опалення центральне (лічильник).
      - Вода та каналізація.

      Локація:
      Розташоване на "другій лінії", за будівлею колишнього Рудоуправління. Густонаселений район, поряд великий офісний центр, добре проглядається з боку вулиць Тесленка та Бикова, у дворі невеликий ринок, прод.магазин, д/садок.

      Ціна 14800$

      За будь-якими питаннями за цією або схожими пропозиціями звертайтесь за номером телефону, де вам відповість наш ріелтор 097 541 73 31.

      З повагою, команда Credo!

      Надіслати скаргу

      Закрити
      Поскаржитися на об'єкт «ул. Софьи Перовской (г. Кривой Рог, Саксаганский район)»
      Ваш коментар:(Необов'язково)
      Ваша скарга буде надіслана ріелтору, що розмістив об'єкт, а також адміністрації сайту АФНУ.
      Ваше ім'я:
      (Обов'язково)
      Ваш e-mail для відповіді:
      (Обов'язково)

      Вам также могут подойти

      Володимира Великого (г. Кривой Рог, Саксаганский район) - Здається торгівельний майданчик, 15000 грн. - АФНУ

      Оновлено: 2 березня

      Розміщено: 16 травня 2025

      Здається торгівельний майданчик

      площа 41, поверх 1/5

      г. Кривой Рог, Володимира Великого

      15000 грн.

      Літвинова Ірина Вікторівна

      Оренда приміщення вул. В. Великого
      - «Червона лінія»

      Технічні характеристики:
      - Приміщення знаходиться в доброму стані
      - Стеля амстронг
      - На підлозі кахель
      - Великі вітражні вікна
      - Встановлені ролети…

      Детальніше

      пер. 5-й Заречный (г. Кривой Рог, Саксаганский район) - Здається торгівельний майданчик, 15000 грн. - АФНУ

      Оновлено: 18 лютого

      Розміщено: 4 серпня 2025

      Здається торгівельний майданчик

      площа 61, поверх 1/9

      г. Кривой Рог, пер. 5-й Заречный

      15000 грн.

      Літвинова Ірина Вікторівна

      Оренда магазину мкрн.5-й Зарічний, "Бродвей"
      м.Кривий Ріг
      Покровський район

      Харектиристика:
      -загальна площа-61,6 кв.м
      -висота стелі- 2.40 м
      -центральний вхід
      - перший поверх 9-ти поверхового будинку, окремий вхід

      Комунікації:
      - центральне…

      Детальніше

      ул. Косиора (г. Кривой Рог, Дзержинский район) - Продається торгівельний майданчик, 15700 € - АФНУ

      Оновлено: 26 лютого

      Розміщено: 8 листопада 2018

      Продається торгівельний майданчик

      площа 67, поверх 1/4

      г. Кривой Рог, ул. Косиора

      15700 €

      Літвинова Ірина Вікторівна

      Терміново! В зв'язку з виїздом!
      Продаж приміщення, вул. Соборності, Соцмісто

      Про обʼєкт:
      - вбудоване в 1-ий поверх 4-х поверхового житлового будинку
      - загальна площа - 67,5 кв. м

      Особливості:
      -…

      Детальніше

      Коментарі