Вхід на сайт

Ел. пошта:
Пароль:

Реєстрація на сайті

Призвіще: Область:
Ім'я: Населений пункт:
    По батькові: Номер телефону:
    Ел. пошта: Компанія:
      Пароль: Посада:
      Повторіть пароль: Рік початку роботи:
      Фото:
      З правилами розміщення об'єктів погоджуюсь

      Забули пароль?

      Вкажіть ел. пошту — ми надішлемо Вам новий пароль для входу
      Ел. пошта:

      Проблема на сайті

      Закрити
      Ваш e-mail:
      (необов'язково)
      Розкажіть нам, що сталось

      _________.jpg

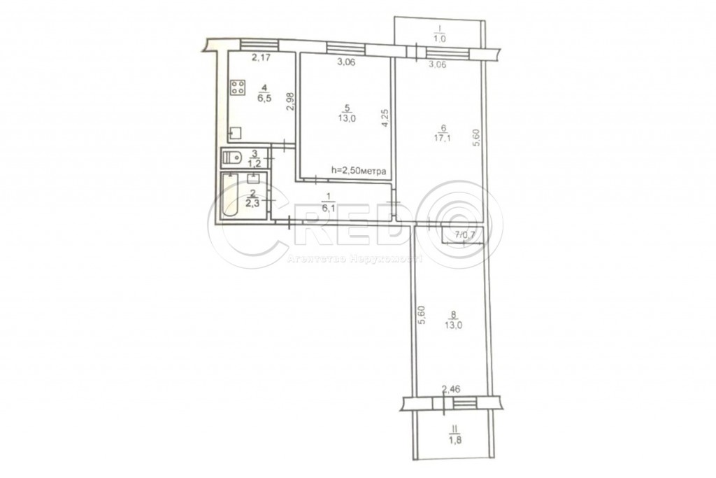
      Свято-Миколаївська — Продається квартира

      (г. Кривой Рог, Центрально-Городской район)

      35000 $

      Загальна площа: 62 кв.м

      Жила площа: 43 кв.м

      Площа кухні: 6 кв.м

      Кімнат: 3

      Поверх: 3

      К-ть поверхів: 9

      Пропонуємо до продажу 3кімнатну квартиру
      в 9типоверховому будинку на 3 поверсі по вулиці
      Свято-Миколаївській,15.
      Гарне розташування! Центральна вулиця але тиха її
      частина.Чудова прогулянкова зона! У пішому доступі
      улюблені парки та проспект Поштовий.

      Про об'єкт:
      - 3кімнатна квартира.
      - загальна площа 62,7 м.кв.
      - житлова площа 43,1 м.кв.
      - 3 поверх 9типоверхового будинку.
      - двостороння.
      - маємо балкон та лоджію.
      - дуже чистий, відремонтований під'їзд.
      - відповідальні сусіди.
      - розпочато капітальний ремонт.
      - замінені вікна, облаштовано лоджію та балкон.
      - повністю вичищенний простір.

      Локація:
      - вихід на вулиці Свято-Миколаївській до зупинок
      громадського транспорту "Райвиконком" та "Українська".
      - у пішому доступі магазини улюблених торгівельних
      мереж АТБ, Варус та інші.
      - поряд центральні парки ім.Ф.Мершавцева та Театральний.
      - Палац дитячої творчості, дитячий майданчик.
      - найкращі ресторани міста.

      Ціна 35 000 $
      За будь-якими питаннями за цією або схожими пропозиціями звертайтесь за номером телефону, де вам відповість наш ріелтор 067 982 17 19.

      З повагою, команда Credo!

      Надіслати скаргу

      Закрити
      Поскаржитися на об'єкт «Свято-Миколаївська (г. Кривой Рог, Центрально-Городской район)»
      Ваш коментар:(Необов'язково)
      Ваша скарга буде надіслана ріелтору, що розмістив об'єкт, а також адміністрації сайту АФНУ.
      Ваше ім'я:
      (Обов'язково)
      Ваш e-mail для відповіді:
      (Обов'язково)

      Вам также могут подойти

      ул. Коммунистическая (г. Кривой Рог, Центрально-Городской район) - Продається квартира, 33000 $ - АФНУ

      Оновлено: 25 лютого

      Розміщено: 5 травня 2025

      Продається квартира

      3 кімн., площа 70/-/26, поверх 1/3

      г. Кривой Рог, ул. Коммунистическая

      33000 $

      Літвинова Ірина Вікторівна

      Пропонуємо до продажу унікальний об'єкт біля центрального входу в Гданцівський парк.

      Про квартиру:
      - загальна площа - 70,7 кв.м
      - площа кухні - 26 кв.м
      - 1/3 поверхового будинку "сталінка"…

      Детальніше

      ул. Коммунистическая (г. Кривой Рог, Центрально-Городской район) - Продається квартира, 36000 $ - АФНУ

      Оновлено: 15 січня

      Розміщено: 4 грудня 2025

      Продається квартира

      2 кімн., площа 51/28/7, поверх 3/3

      г. Кривой Рог, ул. Коммунистическая

      36000 $

      Літвинова Ірина Вікторівна

      Продаж 2кімнатної квартири в історичному центрі міста
      Рідкісна пропозиція!
      Пропонуємо до продажу 2кімнатну квартиру "сталінського"
      проєкту в атмосферному місці Центрально-Міського району,
      вулиця Мартіна Шимановського,9.
      Улюблена прогулянкова зона, що веде до…

      Детальніше

      ул. Коммунистическая (г. Кривой Рог, Центрально-Городской район) - Продається квартира, 33000 $ - АФНУ

      Оновлено: 25 лютого

      Розміщено: 5 травня 2025

      Продається квартира

      3 кімн., площа 70/-/26, поверх 1/3

      г. Кривой Рог, ул. Коммунистическая

      33000 $

      Літвинова Ірина Вікторівна

      Пропонуємо до продажу унікальний об'єкт біля центрального входу в Гданцівський парк.

      Про квартиру:
      - загальна площа - 70,7 кв.м
      - площа кухні - 26 кв.м
      - 1/3 поверхового будинку "сталінка"…

      Детальніше

      Коментарі