Вхід на сайт

Ел. пошта:
Пароль:

Реєстрація на сайті

Призвіще: Область:
Ім'я: Населений пункт:
    По батькові: Номер телефону:
    Ел. пошта: Компанія:
      Пароль: Посада:
      Повторіть пароль: Рік початку роботи:
      Фото:
      З правилами розміщення об'єктів погоджуюсь

      Забули пароль?

      Вкажіть ел. пошту — ми надішлемо Вам новий пароль для входу
      Ел. пошта:

      Проблема на сайті

      Закрити
      Ваш e-mail:
      (необов'язково)
      Розкажіть нам, що сталось

      _________.jpg

      без комісії зіньківська — Продається квартира

      (г. Полтава, Киевский район)

      58000 $

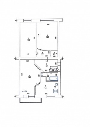
      Загальна площа: 64 кв.м

      Жила площа: 35 кв.м

      Площа кухні: 7 кв.м

      Кімнат: 3

      Поверх: 3

      К-ть поверхів: 5

      Продаж трикімнатної квартири на зупинці Дослідна, (Інститут зв'язку).

      Загальна площа — 63,8м²
      3/5 поверх
      3 кімнати площею 13, 14, 15м2
      Кухня 7,4 м2
      Комора
      Передпокій
      Засклений балкон
      2 кондиціонери
      Сигналізація

      З меблями та технікою

      В квартирі багато місця для речей — комора, шафи-купе в кімнатах та коридорі.

      Зручне розташування: поруч ринок, магазини, АТБ, школа, садок, зупинка транспорту.
      Неподалік ТРЦ "КИЇВ", одна зупинка або 10 хвилин пішки.

      Телефонуйте для перегляду.
      Без комісії.

      Надіслати скаргу

      Закрити
      Поскаржитися на об'єкт «зіньківська (г. Полтава, Киевский район)»
      Ваш коментар:(Необов'язково)
      Ваша скарга буде надіслана ріелтору, що розмістив об'єкт, а також адміністрації сайту АФНУ.
      Ваше ім'я:
      (Обов'язково)
      Ваш e-mail для відповіді:
      (Обов'язково)

      Коментарі