Вхід на сайт

Ел. пошта:
Пароль:

Реєстрація на сайті

Призвіще: Область:
Ім'я: Населений пункт:
    По батькові: Номер телефону:
    Ел. пошта: Компанія:
      Пароль: Посада:
      Повторіть пароль: Рік початку роботи:
      Фото:
      З правилами розміщення об'єктів погоджуюсь

      Забули пароль?

      Вкажіть ел. пошту — ми надішлемо Вам новий пароль для входу
      Ел. пошта:

      Проблема на сайті

      Закрити
      Ваш e-mail:
      (необов'язково)
      Розкажіть нам, що сталось

      _________.jpg

      Павла Глазового — Продається торгівельний майданчик

      (г. Кривой Рог, Саксаганский район)

      100000 $

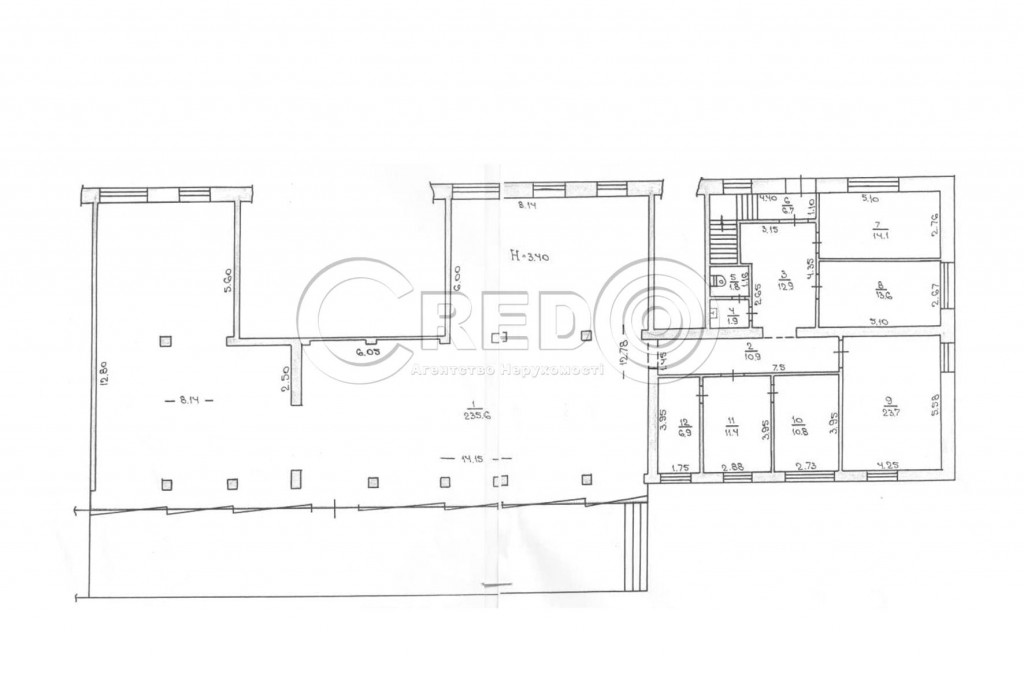
      Загальна площа: 350 кв.м

      Поверх: 1

      К-ть поверхів: 5

      Продаж магазину на "Вечірньому".
      - вул. Павла Глазового,41
      - Саксаганський район.

      Технічні характеристики:
      - загальна площа – 350 кв.м.
      - торгівельний зал площею 235,6 кв.м
      - висота стелі Н=3,40 м
      - вітражні вікна
      - магазин в робочому стані
      - завантажувальний вхід
      - «червона лінія»
      - парковка біля приміщення.

      Комунікації:
      - електроенергія 12кВт, 380V
      - центральне водопостачання та каналізація
      - центральне опалення
      - охоронна та пожежна сигналізації.

      Локація:
      - магазин розташований в великому спальному районі
      - проїздна частина
      - великий автомобільний та пішохідний трафік
      - гарна локація для Вашого бізнесу.

      Ціна продажу - 100 000 у.о.

      За будь-якими питаннями за цією або схожими пропозиціями звертайтесь за номером телефону 067 696 16 51.
      З повагою, команда Credo!

      Надіслати скаргу

      Закрити
      Поскаржитися на об'єкт «Павла Глазового (г. Кривой Рог, Саксаганский район)»
      Ваш коментар:(Необов'язково)
      Ваша скарга буде надіслана ріелтору, що розмістив об'єкт, а також адміністрації сайту АФНУ.
      Ваше ім'я:
      (Обов'язково)
      Ваш e-mail для відповіді:
      (Обов'язково)

      Вам также могут подойти

      ул. Товстановского (г. Кривой Рог, Жовтневый район) - Продається торгівельний майданчик, 85000 $ - АФНУ

      Оновлено: 20 серпня

      Розміщено: 24 лютого 2021

      Продається торгівельний майданчик

      площа 983, поверх -/1

      г. Кривой Рог, ул. Товстановского

      85000 $

      Літвинова Ірина Вікторівна

      Продаж комплексу на Піонері вул. Кирило-Мефодіївська (Товстановського).
      Комплекс з боксами, гаражами, складами та побудовами.
      Земельна ділянка 45 соток з кадастровим номером, огороджена, асфальтована.

      Технічні характеристики:
      Загальна площа будівлі 983.8кв.м.

      Комунікації:…

      Детальніше

      Коментарі