Вхід на сайт

Ел. пошта:
Пароль:

Реєстрація на сайті

Призвіще: Область:
Ім'я: Населений пункт:
    По батькові: Номер телефону:
    Ел. пошта: Компанія:
      Пароль: Посада:
      Повторіть пароль: Рік початку роботи:
      Фото:
      З правилами розміщення об'єктів погоджуюсь

      Забули пароль?

      Вкажіть ел. пошту — ми надішлемо Вам новий пароль для входу
      Ел. пошта:

      Проблема на сайті

      Закрити
      Ваш e-mail:
      (необов'язково)
      Розкажіть нам, що сталось

      _________.jpg

      ул. Вольная — Продається будинок

      (г. Кривой Рог, Саксаганский район)

      37000 $

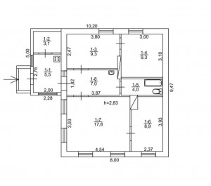
      Загальна площа: 65 кв.м

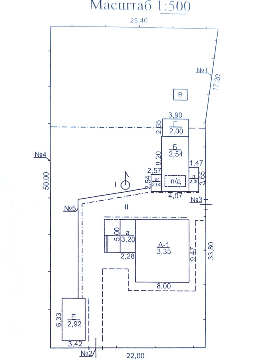
      Площа ділянки: 10 сот

      Кімнат: 4

      К-ть поверхів: 1

      Пропонуємо до продажу добротний будинок з великою ділянкою біля міської лікарні №5, вулиця Вільна.
      Географічне розташування середина міста Кривий Ріг.
      Однакова відстань як до південних так і до північних районів.
      Локація зацікавить тих хто шукає приватний будинок в районах Ювілейна, Мікрорайон, Юність, 173 квартал.

      Про об'єкт:
      - міцний будинок заг.площею 65м.кв.
      - 4 кімнати житлової площі 45,3м.кв.
      - окремо обладнана кухня 8м х 4 м, 2 кімнати.
      - капітальний гараж з оглядовою ямою.
      - металевий гараж.
      - господарькі будівлі.
      - вольєр для собак.
      - глибокий підвал і окремо погріб.
      - 10 соток приватизованої землі.

      Планування об'єкту:
      - будинок має 4 житлові кімнати: 17.8 + 9.3 + 9.3 + 8.9м.кв.
      - санвузол 4 м.кв.
      - передпокій та комора.
      - високі стелі 2.85 м.
      - кухня має дві кімнати та передпокій: робоча кухонна зона з технікою та кімната для відпочинку.

      Комунікації та особливості об'єкту:
      - будинок та кухня обладнані водопроводом та мають центральну каналізацію.
      - опалення та теплу воду забезпечує двоконтурний котел "Immergs".
      - виконана якісна розводка опалення, замінені батареї та вікна.
      - підлога та міжкімнатні двері дерев'яні в хорошому стані.
      - збережені дві груби для можливого альтернативного опалення.
      - вихід на чердачне приміщення з самого будинку - дуже зручно для зберігання сезонних речей!

      Прибудинкова територія та сад:
      - на приватизованій ділянці 10 соток розташовано 2 гаражі: капітальний із шлакоблоку та металевий.
      - до "літньої" кухні прибудовано господарчу будівлю.
      - є вуличний санвузол, дровник, дров'яна плита.
      - під кухнею розташований просторий підвал.
      - дуже охайний город, плодові дерева.
      - квітник з сезонними квітами.
      - Особливість домоволодіння у кутовому розташуванні!
      - є вхід з центральної вулиці, а також зручний заїзд з провулку.

      Локація:
      - розташування будинку навпроти міської лікарні №5, амбулаторії, сімейної медицини, аптек.
      - локаційно поряд розташована школа №21, №43, №113,
      - дитячий садок
      - АТБ, гастроном «Птиця», автомайстерня, "Юність".
      тел. 067 982 17 19

      Надіслати скаргу

      Закрити
      Поскаржитися на об'єкт «ул. Вольная (г. Кривой Рог, Саксаганский район)»
      Ваш коментар:(Необов'язково)
      Ваша скарга буде надіслана ріелтору, що розмістив об'єкт, а також адміністрації сайту АФНУ.
      Ваше ім'я:
      (Обов'язково)
      Ваш e-mail для відповіді:
      (Обов'язково)

      Вам также могут подойти

      ул. Гете (г. Кривой Рог, Центрально-Городской район) - Продається будинок, 40000 $ - АФНУ

      Оновлено: 7 жовтня

      Розміщено: 28 серпня 2023

      Продається будинок

      г. Кривой Рог, ул. Гете

      40000 $

      Літвинова Ірина Вікторівна

      Продаж будинку у казковій місцині Центрально-Міського району "Скелі МОДРу".

      Цікава пропозиція - продаж будинку на березі Інгульця у природно-заповідній зоні "Скелі МОДРу". Геологічна пам’ятка природи загальнодержавного значення.
      Чудовий вид на…

      Детальніше

      ул. Попова (г. Кривой Рог, Долгинцевский район) - Продається будинок, 37000 $ - АФНУ

      Оновлено: 29 вересня

      Розміщено: 2 липня

      Продається будинок

      г. Кривой Рог, ул. Попова

      37000 $

      Літвинова Ірина Вікторівна

      Пропонуємо до продажу 4кімнатний будинок на Довгинцево,
      вул.Краєвидна (раніше Попова),район станції Новоблочна.
      Широка, асфальтована вулиця з гарними будинками та
      місцевою продуктовою крамничкою. Відносно не далеко
      розташована Міська лікарня № 10.…

      Детальніше

      Коментарі