Вхід на сайт

Ел. пошта:
Пароль:

Реєстрація на сайті

Призвіще: Область:
Ім'я: Населений пункт:
    По батькові: Номер телефону:
    Ел. пошта: Компанія:
      Пароль: Посада:
      Повторіть пароль: Рік початку роботи:
      Фото:
      З правилами розміщення об'єктів погоджуюсь

      Забули пароль?

      Вкажіть ел. пошту — ми надішлемо Вам новий пароль для входу
      Ел. пошта:

      Проблема на сайті

      Закрити
      Ваш e-mail:
      (необов'язково)
      Розкажіть нам, що сталось

      _________.jpg

      ул. Янова — Здається торгівельний майданчик

      (г. Кривой Рог, Центрально-Городской район)

      350 грн. за кв.м.

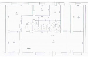
      Загальна площа: 207 кв.м

      Поверх: 1

      К-ть поверхів: 4

      Оренда магазину в історично-діловому центрі міста
      - Центрально Міський район
      - Вул. Комерційна, 3

      Про об’єкт:
      - 1 поверх 4 -х поверхового житлового будинку
      - Окремий вхід
      - Перед приміщенням власна парковка

      Планування об’єкту:
      - Загальна площа - 207 кв.м
      - Торгівельна зала площею -106 кв.м
      - Висота стелі-4,85 м
      - Центральний та завантажувальний входи

      Комунікації:
      - Електроенергія-90кВт; 380 Вт, власне ТП
      - Центральне водопостачання та каналізація
      - Опалення амтономне газове
      - Припливно - витяжна установка
      - Кондиціонери
      - Пожежна та охоронна сигналізації

      Додаткові платежі:
      - Світло, вода, опалення - лічильники
      - Пожежна та охорона сигналізації
      - Інтернет
      - Послуги ЖКХ
      - 50% послуга агенції

      Логістична розв’язка:
      - Об’єкт розташований в "серці" історичного центру міста
      - Поруч зупинка громадського транспорту
      - По цій вулиці розташовано безліч кафе, ресторанів та інших магазинів

      Особливості приміщення:
      - Прикраса магазину - це великі вітражні вікна.
      - В просторому, світлому залі залишилася мозаїка, на стелі ліпнина
      - Приміщення вільного призначення
      - Підійде під будь яку Вашу діяльність, а саме: ресторан, кафе, мед.заклад, магазин, салон

      Вартість оренди 350 грн/кв.м

      За будь-якими питаннями за цією або схожими пропозиціями звертайтесь за номером телефону 067 696 16 51.
      З повагою, команда Credo!

      Надіслати скаргу

      Закрити
      Поскаржитися на об'єкт «ул. Янова (г. Кривой Рог, Центрально-Городской район)»
      Ваш коментар:(Необов'язково)
      Ваша скарга буде надіслана ріелтору, що розмістив об'єкт, а також адміністрації сайту АФНУ.
      Ваше ім'я:
      (Обов'язково)
      Ваш e-mail для відповіді:
      (Обов'язково)

      Вам также могут подойти

      пр. Центральний (г. Кривой Рог, Центрально-Городской район) - Здається торгівельний майданчик, 220 грн. за кв.м. - АФНУ

      Оновлено: 1 вересня

      Розміщено: 19 травня

      Здається торгівельний майданчик

      площа 110, поверх 1/5

      г. Кривой Рог, пр. Центральний

      220 грн. за кв.м.

      Літвинова Ірина Вікторівна

      Оренда приміщення, проспект Центральний, Центрально Міський район

      Пропонуємо приміщення у відмінному стані, після свіжого та стильного ремонту.

      Технічні характеристики:
      - загальна площа 110,8кв.м.
      - торгова площа - 84,1кв.м.
      - парковка…

      Детальніше

      ул. Украинская (г. Кривой Рог, Центрально-Городской район) - Здається торгівельний майданчик, 375 грн. за кв.м. - АФНУ

      Оновлено: 21 серпня

      Розміщено: 21 серпня

      Здається торгівельний майданчик

      площа 100, поверх 1/2

      г. Кривой Рог, ул. Украинская

      375 грн. за кв.м.

      Літвинова Ірина Вікторівна

      Оренда магазину вул. Українська
      - м.Кривий Ріг
      - Центрально-Міський район
      - окрема розташована двоповерхова будівля
      - "червона лінія"

      Харектиристика:
      - перший поверх, окрема вхідна группа
      - загальна площа - 100…

      Детальніше

      пр. Університетський (г. Кривой Рог, Саксаганский район) - Здається торгівельний майданчик, 350 грн. за кв.м. - АФНУ

      Оновлено: 9 жовтня

      Розміщено: 29 березня 2024

      Здається торгівельний майданчик

      площа 260, поверх 1/9

      г. Кривой Рог, пр. Університетський

      350 грн. за кв.м.

      Літвинова Ірина Вікторівна

      Оренда торгового приміщення пр. Університетський
      - Довгинцівський район

      Технічні характеристики:
      - перший поверх 9-ти поверхового житлового будинку
      - "червона лінія"
      - в приміщенні ведуться ремонтні роботи

      Планування об’єкту:
      - загальна…

      Детальніше

      Коментарі