Вхід на сайт

Ел. пошта:
Пароль:

Реєстрація на сайті

Призвіще: Область:
Ім'я: Населений пункт:
    По батькові: Номер телефону:
    Ел. пошта: Компанія:
      Пароль: Посада:
      Повторіть пароль: Рік початку роботи:
      Фото:
      З правилами розміщення об'єктів погоджуюсь

      Забули пароль?

      Вкажіть ел. пошту — ми надішлемо Вам новий пароль для входу
      Ел. пошта:

      Проблема на сайті

      Закрити
      Ваш e-mail:
      (необов'язково)
      Розкажіть нам, що сталось

      _________.jpg

      Соборності — Продається торгівельний майданчик

      (г. Полтава, Киевский район)

      178000 $

      Загальна площа: 89.1 кв.м

      Поверх: 1

      К-ть поверхів: 2

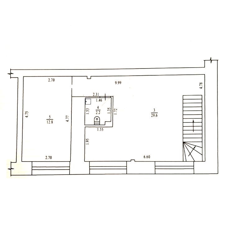
      • Продаж магазину непродовольчої групи товарів в Центрі по вул. Соборності з окремим входом з фасадної частини будинку, загальною площею 89,1 м2

      Характеристики:
      -1 поверх (вхід з фасаду будинку) площею 44,5 м2
      -- торговельний зал- 31,5 м2
      -- торговельний зал- 13,0 м2
      - 2 поверх площею 44,6 м2
      -- торговельний зал 29,6 м2
      -- побутове приміщення 12,8 м2
      -- санвузол- 2,2 м2

      Комунікації:
      - централізоване опалення та водовідведення
      - потужність електромережі 7 кВт
      - кондиціонери

      Надіслати скаргу

      Закрити
      Поскаржитися на об'єкт «Соборності (г. Полтава, Киевский район)»
      Ваш коментар:(Необов'язково)
      Ваша скарга буде надіслана ріелтору, що розмістив об'єкт, а також адміністрації сайту АФНУ.
      Ваше ім'я:
      (Обов'язково)
      Ваш e-mail для відповіді:
      (Обов'язково)

      Коментарі